Αυτόματος Διακόπτης Αναστροφής (μανδάλωση μέσω βοηθητικών επαφών των ηλεκτρονόμων)

Εργαστηριακές ασκήσεις κλασικού αυτοματισμού.
Απάντηση
djemos
Site Admin
Δημοσιεύσεις: 57
Εγγραφή: 04 Φεβ 2020 19:15

Αυτόματος Διακόπτης Αναστροφής (μανδάλωση μέσω βοηθητικών επαφών των ηλεκτρονόμων)

Δημοσίευση από djemos »

ΜΑΘΗΜΑ: ΕΡΓΑΣΤΗΡΙΟ ΗΛΕΚΤΡΙΚΩΝ ΜΗΧΑΝΩΝ - ΗΛΕΚΤΡΟΤΕΧΝΙΑ

ΤΜΗΜΑ: ΓΗΛ

ΟΝΟΜ/ΜΟ ΜΑΘΗΤΗ: ......................................................................

ΚΑΘΗΓΗΤΗΣ: ΤΖΕΜΟΣ ΔΗΜΗΤΡΙΟΣ

ΦΥΛΛΟ ΕΡΓΟΥ:

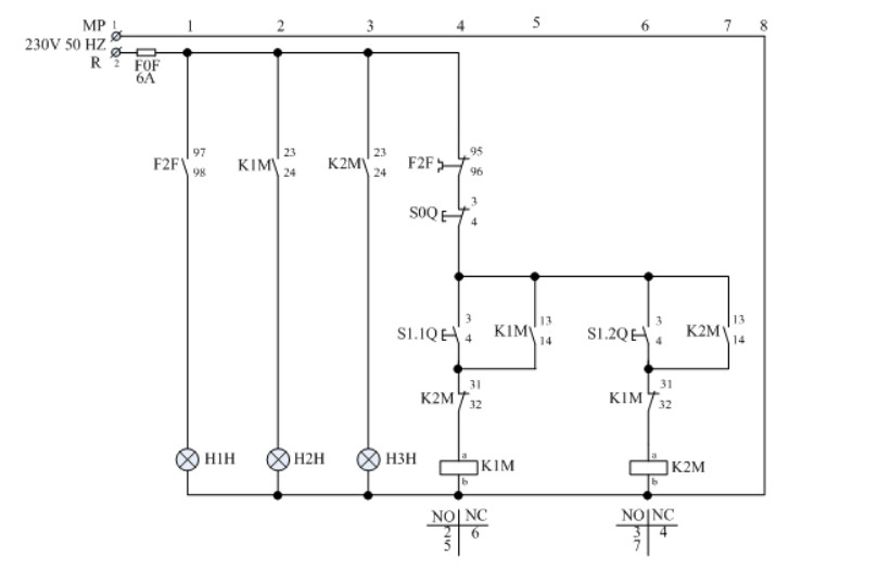
Άσκηση: Αυτόματος Διακόπτης Αναστροφής (μανδάλωση μέσω βοηθητικών επαφών των ηλεκτρονόμων)

Σκοπός αυτής της άσκησης είναι η εξοικείωση των μαθητών εγκαταστατών ηλεκτρολόγων περί της
συνδεσμολογίας αυτόματου διακόπτη αναστροφής, περί μανδάλωσης μέσω βοηθητικών επαφών
ηλεκτρονόμου και περί του διαφορετικού τρόπου λειτουργίας και χειρισμού ενός κινητήρα.

Ο αυτόματος διακόπτης αναστροφής χρησιμοποιείται στους κινητήρες που απαιτείται διπλή φορά
περιστροφής (γερανογέφυρες, βαρούλκα, γερανοί κ.τ.λ.). Η αντιστροφή της φοράς περιστροφής του
κινητήρα γίνεται με τη μέθοδο της αντιστροφής των φάσεων. Η όλη διάταξη περιλαμβάνει δύο
ηλεκτρονόμους, ένα θερμικό και τα μπουτόν STOP - START (ένα για κάθε φορά περιστροφής).

Επίσης είναι δυνατόν να υπάρχουν και δύο ενδεικτικές λυχνίες, μία για κάθε φορά περιστροφής.

kirio-anastrofi.jpg
kirio-anastrofi.jpg (145.97 KiB) Προβλήθηκε 3 φορές

anastrofi.jpg
anastrofi.jpg (30.86 KiB) Προβλήθηκε 3 φορές

Κατεβάστε το πλήρες φύλλο έργου σε αρχείο doc ή pdf.
Συνημμένα
Αυτόματος Διακόπτης Αναστροφής.pdf
(200.22 KiB) Μεταφορτώθηκε 1 φορά
Αυτόματος Διακόπτης Αναστροφής.doc
(663.5 KiB) Μεταφορτώθηκε 1 φορά
Αυτόματος Διακόπτης Αναστροφής.odt
(692.21 KiB) Καμία μεταφόρτωση ακόμη
Αυτόματος Διακόπτης Αναστροφής (μανδάλωση μέσω βοηθητικών επαφών των ηλεκτρονόμων).pdf
ΦΥΛΛΟ ΕΡΓΟΥ
(67.09 KiB) Μεταφορτώθηκε 91 φορές
Απάντηση